Residential Development
£250,000 Price Guide
Jubilee Road, Sandwich
A Semi-Rural Development Opportunity with Planning Consent for the erection of two detached dwellings
Full Property Description
A Semi-Rural Development Opportunity with Planning Consent for the erection of two detached dwellings
The site is located on Jubilee Road in Worth, a semi-rural yet accessible position with views over open countryside. The property lies approximately 1.5 miles from Sandwich and is well placed for access to Dover (9 miles) and Canterbury (12 miles).
The A256 is accessible at Sandwich (1.5 miles), providing a direct link to the A2 and the national motorway network. Thanet Parkway railway station offers high-speed services to London St Pancras in approximately 75 minutes. The surrounding area is popular with tourists and golfers, with nearby attractions including Pegwell Bay Nature Reserve, the Viking Coastal Trail, and the historic port town of Sandwich.
From the A256, take the exit for the A258 to Deal continue along the A258 for approximately 1.5 miles and take a left hand turn to Jubilee Road. The entrance is on your right hand side after approximately 0.3 miles. The development site is located to the side of the residential properties. The nearest postcode is CT14 0DP
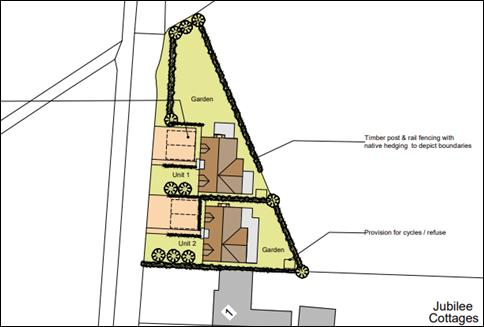
The site comprises an area of approximately 0.17 acres (subject to survey). The land is generally level and benefits from a vehicular access from Jubilee Road.
The Development as Consented Includes:
•2 no. two storey dwellings (3-bed detached)
•Dedicated Parking for Residents and Visitors
•Private Amenity space
The layout has been designed to provide generous outside space for each of the units, with landscaping and screening to enhance privacy and visual amenity.
The grant of planning permission for the erection of the dwellings was granted by Dover District Council (Ref: 25/00025). The pre- commencement conditions have now been discharged. An information pack including the approved plans, Decision Notice, and other supporting documentation is available on request from the Agents e-mail m.chandler@finns.co.uk.
The following covenants apply, or will be applied to the sale:
1. The Vendors will provide all necessary information in relation to the current planning consent.
The property is offered for sale by private treaty with a right reserved to take the property to auction, formal or informal tender at a later date.
Freehold with vacant possession on completion.
The property is sold to and with the benefit of all existing covenants, wayleaves and rights of way whether public or private specifically mentioned or not.
Mains electricity, water and drainage are available nearby. Interested parties should make their own enquiries regarding service connections.
The purchaser must satisfy themselves of the location of all the boundaries from their own inspection and from the Land Registry plans available. Areas are quoted for guidance purposes only and are given without responsibility which should not be relied upon as fact. The plan on the final page of this brochure is the indicative area for sale.
In accordance with Money Laundering Regulations we are now required to obtain proof of identification of funds prior to agreeing a sale.
Strictly by confirmed appointment with the Agent email m.chandler@finns.co.uk or 01304 612 147 (Option 3). If you are unsure of any of the details, please speak to Mark Chandler.
EPC
We don't currently have floor plans for this property, please contact us for more information.
Floorplans
We don't currently have floor plans for this property, please contact us for more information.
List of nearest schools to this property.
* Distances are straight line measurements.
Key Stage 2
Sandwich Junior School - 0.21 miles
Key Stage 4
Sir Roger Manwood's School - 0.46 miles
Key Stage 5
Sir Roger Manwood's School - 0.46 miles
List of nearest public transport to this property.
* Distances are straight line measurements.
Train Station
Sandwich Rail Station - 0.37 miles
Airport
Lydd London Ashford Airport - 27.97 miles
Coach Station
Deal: South Street Bus Station - 4.56 miles
Ferry Port
Dover Eastern Docks Ferry Terminal - 10.08 miles
You will have to pay £XXX in stamp duty.
Please note the above figure will be different if you are purchasing this as an additional property.
@ Jubilee Road, Sandwich
Please enter your details below and one of our team will get back to you as soon as possible