5 Bedroom Detached House
£4,500 PCM
58 St. Peters Street, Canterbury
One of Canterbury’s best kept secrets. This 16th Century Grade II listed home in the centre of Canterbury has been refurbished to an extremely...
Full Property Description
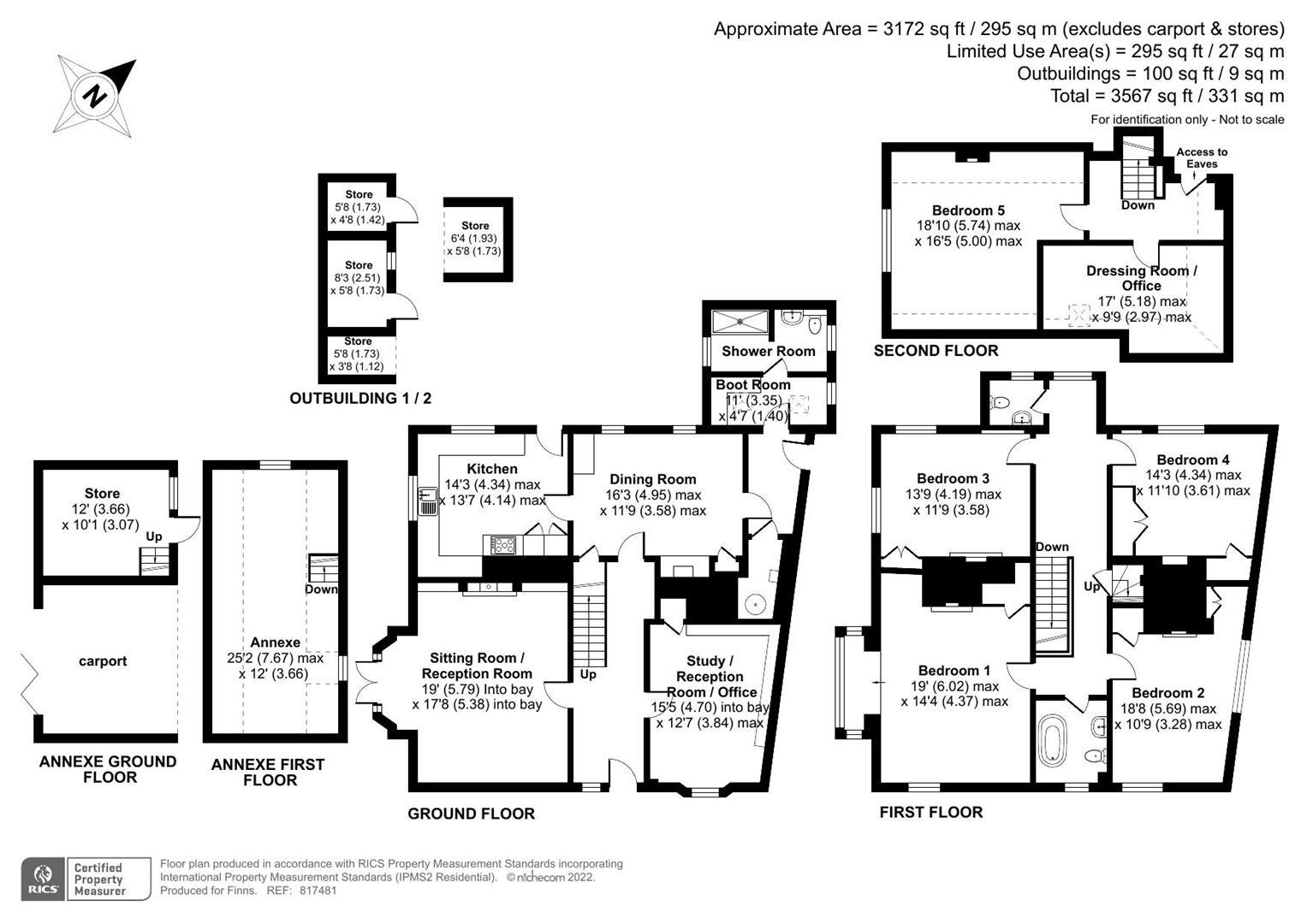
One of Canterbury’s best kept secrets. This 16th Century Grade II listed home in the centre of Canterbury has been refurbished to an extremely high standard throughout whilst maintaining its original features. Situated on St Peter’s Street within easy walking distance to Canterbury East and West railway stations, the Marlowe Theatre, Canterbury Cathedral and many of Canterbury’s highly acclaimed Schools and Universities. A beautifully presented five bedroom detached period house providing spacious well appointed accommodation over three floors. The property comprises on the ground floor; grand entrance hall, two reception rooms, one of which opens through French Doors onto the garden, kitchen, dining room, boot room, shower room and rear entrance. On the first floor there are four bedrooms, a family bathroom and separate WC. The second floor comprises of a fifth bedroom plus dressing room/office. The property benefits from gas fired central heating, has several outbuildings for storage of bikes etc and off-street parking for a minimum of three vehicles. The large, landscaped garden can be maintained by the landlord’s gardeners which would be payable over and above the monthly rent.
Cleanly decorated with refinished French Oak flooring
Cleanly decorated with refinished French Oak flooring, sash window with original working shutters, bookcases covering two walls, cupboard housing a safe.
Cleanly decorated original paneled walls and beams, floor coverings, French Doors with working shutters open onto the rear garden and a fireplace with a marble surround housing a wood burning stove.
Cleanly decorated, refinished French Oak flooring, exposed beams, ornamental fireplace, built in dresser, large under stairs storage cupboard plus additional smaller storage cupboard and lighting.
Range of stone coloured wall and base units with concrete Formica worktops. Tiled splash backs, worktop lighting, white ceramic bowl and a half sink with Monoblock kitchen mixer tap, integrated Lamona dishwasher, Smeg 5 burner gas hob with stainless steel extractor hood, Smeg double oven, integrated Smeg fridge, single glazed double aspect windows overlooking garden, Antico Limed Oak flooring, original beams and access to the garden.
Cleanly decorated with Antico Limed Oak flooring, dual aspect, built in seating with storage underneath, space for washing machine and dryer.
Large walk-in tiled shower with dual shower heads and glass shower screen, WC and sink unit with storage, wall mounted radiator plus heated towel rail and LED down lighting
Wide carpeted staircase leading to first floor, spacious landing with large single glazed window allowing light to flood onto the landing and original beams.
Cleanly decorated, fitted carpet, original feature fireplace (ornamental purposes only), original beams, reading nook with triple aspect overlooking the garden, wall mounted radiators, wardrobe with shelving and hanging rail.
Cleanly decorated, fitted carpet, original feature fireplace (ornamental purposes only), original Beams, original windows with secondary glazing, three wardrobes with shelving.
Cleanly decorated, fitted carpet, original feature fireplace (ornamental purposes only), dual aspect single glazed sash windows, wardrobe with shelving and hanging space.
Cleanly decorated, fitted carpet, original feature fireplace (ornamental purposes only), single glazed sash window, wardrobes with shelving and hanging space.
Traditional high-level WC, basin with mirror above, ornate tiled floor and part tiled walls.
Bathroom suite comprises of claw foot tub with traditional crosshead bath shower mixer tap, WC and sink with mirrored cabinet above, Antico Limed oak flooring, partially tiled walls, single glazed sash window to side, wall mounted radiator, extractor fan
Cleanly decorated, fitted carpet, original beams, landing with glass balustrade overlooking stairs, access to loft storage.
Beautiful exposed beams and roof timbers. Cleanly decorated, carpeted, feature fireplace (ornamental purposes only) and spotlights.
Cleanly decorated, fitted carpet, and exposed beams
There is an attractive landscaped garden to the rear which will be maintained by the Landlord’s gardeners . A vegetable patch for tenants to grow their own fruit and vegetables. Several outbuildings for storage.
To the front of the property, there is off street parking for a least three cars and an outhouse that can be used for the storage of bikes and other equipment.
List of nearest schools to this property.
* Distances are straight line measurements.
Key Stage 2
St Peter's Methodist Primary School - 0.08 miles
Key Stage 4
The King's School Canterbury - 0.27 miles
Key Stage 5
The King's School Canterbury - 0.27 miles
List of nearest public transport to this property.
* Distances are straight line measurements.
Train Station
Canterbury West Rail Station - 0.29 miles
Airport
Lydd London Ashford Airport - 23.34 miles
Coach Station
Canterbury Bus Station - 0.32 miles
Ferry Port
Folkestone Eurotunnel Terminal - 12.8 miles
@ 58 St. Peters Street, Canterbury
Please enter your details below and one of our team will get back to you as soon as possible