4 Bedroom Detached House
£500,000
Brooklands Close, Canterbury
A light & airy four bedroom detached family home situated in a quiet close in the sought after town of Fordwich. The accommodation comprises an...
Full Property Description
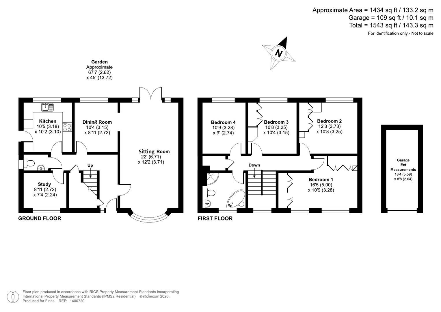
A light & airy four bedroom detached family home situated in a quiet close in the sought after town of Fordwich.
The accommodation comprises an entrance hall which leads through to the spacious double aspect sitting room which has a bay window to the front and French Doors leading to the rear garden. An archway leads through to the dining room.
The kitchen is fitted with a range of wall and base units, spaces for appliances and a built in oven & hob.
A home office and downstairs cloakroom complete the ground floor accommodation.
Upstairs, the landing leads to four bedrooms – three of which have built in wardrobes and the family bathroom.
Outside, the house is set behind its front garden. There is a driveway to the side leading to the single garage.
Most of the garden lies to the rear and measures approximately 67’ x 45’ and is mainly laid to lawn and fence enclosed. There are a wide variety of established trees and shrubs and a greenhouse.
The property is situated on the edge of Britain’s smallest town which has two well regarded pubs, the George & Dragon and the Michelin Starred Fordwich Arms restaurant. There is an ancient town hall and miles of lovely walks along the banks of the river Stour. The popular village of Sturry is very close by which benefits from many local amenities right on the doorstep, including a Doctor's surgery, convenience stores, Post Office, and takeaway restaurants. Sturry Primary School is less than 1 mile and there is a regular bus service between Canterbury & Thanet every 15 minutes. Sturry train station us just a 5 minute walk from the bungalow and has regular links to London, Canterbury & Thanet.
List of nearest schools to this property.
* Distances are straight line measurements.
Key Stage 2
Sturry Church of England Primary School - 0.7 miles
Key Stage 4
Spires Academy - 1.49 miles
Key Stage 5
Barton Court Grammar School - 2.02 miles
List of nearest public transport to this property.
* Distances are straight line measurements.
Train Station
Sturry Rail Station - 0.35 miles
Airport
Lydd London Ashford Airport - 25.03 miles
Coach Station
Canterbury Bus Station - 2.36 miles
Ferry Port
Folkestone Eurotunnel Terminal - 13.8 miles
You will have to pay £XXX in stamp duty.
Please note the above figure will be different if you are purchasing this as an additional property.
@ Brooklands Close, Canterbury
Please enter your details below and one of our team will get back to you as soon as possible